Lot 449 Arbor Green, Rolleston
$735,000 including GST
UNDER CONSTRUCTION – COMPLETION EXPECTED MAY 2026
An exciting opportunity to secure a new home in the growing Rolleston community.
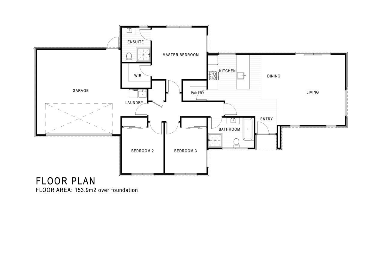
This architecturally inspired, north-facing home is designed to capture all-day sun while delivering comfortable, modern family living. Featuring three double bedrooms, including a master with ensuite, a family bathroom, and open-plan living, the layout is designed for both functionality and lifestyle.
Built by one of Canterbury’s up-and-coming builders, this home includes quality fixtures and finishes throughout. The seamless indoor-outdoor flow creates a peaceful space for relaxing or entertaining, making it an ideal option for families or first-home buyers looking for value and space.
UNDER CONSTRUCTION – COMPLETION EXPECTED MAY 2026
An exciting opportunity to secure a new home in the growing Rolleston community.
This architecturally inspired, north-facing home is designed to capture all-day sun while delivering comfortable, modern family living. Featuring three double bedrooms, including a master with ensuite, a family bathroom, and open-plan living, the layout is designed for both functionality and lifestyle.
Built by one of Canterbury’s up-and-coming builders, this home includes quality fixtures and finishes throughout. The seamless indoor-outdoor flow creates a peaceful space for relaxing or entertaining, making it an ideal option for families or first-home buyers looking for value and space.
1
3
2
2
154 m²

Details at a Glance
3 Bed | 2 Bath | 1 Living | Double Garage | 154m² Home | 411m² Section
- TURNKEY PACKAGE AVAILABLE
- Fixed Price contract
- Master Builders Guarantee
- Rockcote plaster exterior with James Hardie feature cladding
- Thermal broken aluminium joinery
- Designer kitchen by Trends with Tri Stone benchtop
- Elementi bathroom fittings
- Quality floor coverings
- Fisher & Paykel appliances
- Daikin heat pump
- Hard landscaping included
